Twee prachtige bouwgronden voor open bebouwing

Karmstraat 5, 9790 Ooike (Wortegem-Petegem)
compromis

-

-

-

-

-

-

Omschrijving

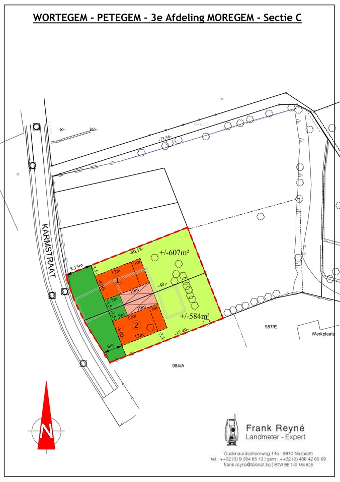
Pal onder de kerktoren van het vredige dorpje “Ooike” ontdekken we deze kleinschalige verkaveling van twee bouwloten op een 18de eeuwse site. Lot 1 heeft een oppervlakte van 607m² en Lot 2 heeft een oppervlakte van 584m². Prijs per lot bedraagt € 155.750 excl. meetkosten € 750 excl.btw. Sloop en heropbouw zijn eventueel mogelijk aan 6% btw. (De afbraakkosten worden gedragen door de huidige eigenaar). Beau House Company kan voor u een wind- en waterdichte bouwcoördinatie voorzien of indien gewenst kan de bouwgrond in onderling overleg zo worden aangekocht.

Kenmerken

Bouwjaar
Bouwvergunning Niet ingevuld
Verkavelingsvergunning Niet ingevuld
EPC -
UC
Kadastraal inkomen € -
Bestemming
Voorkooprecht Niet ingevuld
Dagvaardiging Niet ingevuld
Onroerend erfgoed Niet ingevuld
Overstromingsgevoeligheid selecteer
P-score
G-score

Meer info of bezoek aanvragen


Documenten